Wohnen am Beimoorweg 20a in Ahrensburg
35 mal
ein barrierefreies
Zuhause
53 bis 108 m²
kompakt bis
großzügig
Was zu Dir passt
Stadt+Natur.
Klug gewählt.

Einzug ab Frühjahr 2027.
Jetzt vormerken.
Zuhause ankommen.
Alles erreichbar – mit und ohne Auto
Was den Beimoorweg 20a besonders macht: Du wohnst am Waldrand und hast den Alltag trotzdem vor der Tür. Supermarkt, Bäcker und Apotheke erreichst Du in wenigen Minuten zu Fuß. Zwei Bushaltestellen liegen direkt am Haus und bringen Dich umsteigefrei in die Innenstadt und zum Bahnhof Ahrensburg – von dort bist Du schnell in Hamburg.

Zwei Bushaltestellen
50m zum Bus mit regelmäßiger Verbindung direkt in die Innenstadt von Ahrensburg.

Einkaufsmöglichkeiten
In nur 5 Min. zu Fuß zu mehreren Einkaufsmöglichkeiten inkl. Supermarkt, Apotheke und Baumarkt.

Hamburg um die Ecke
Mit dem Bus in 12 Min. zum Bahnhof Ahrensburg - nach weiteren 23 Min. am Hauptbahnhof Hamburg aussteigen.

Beimoorwald
Naherholung und Sport im Naturschutzgebiet fußläufig erreichbar.
Architektur, die verbindet
„Unsere Vision war klar: smarte Wohnungen, in denen sich Jung und Alt wohlfühlen. Große Glasflächen holen die Ruhe der Umgebung ins Innere, durchdachte Grundrisse schaffen Flexibilität, und nachhaltige Bauweise garantiert Wohnqualität für alle Generationen."
Kirill Neustroev, Architekt

Am Beimoorweg 20a entsteht Dein neues Zuhause – mitten im Grünen und doch bestens angebunden.
Stell Dir vor: Du öffnest morgens die Tür und atmest frische Luft ein. Dein neues Zuhause empfängt Dich mit lichtdurchfluteten Räumen, in denen modernes Design auf wohnliche Wärme trifft. Am Rande des Beimoorwaldes entstehen 35 Wohnungen – und mit ihnen ein Ort, an dem sich Menschen jeden Alters wohlfühlen.
Architektur mit Weitblick
Kreative Köpfe haben hier Außergewöhnliches geschaffen: Ein Wohnhaus das sich harmonisch in seine grüne Umgebung einfügt. Dein künftiges Heim besticht durch eine smarte Raumaufteilung, die den Alltag erleichtert und gleichzeitig Raum für besondere Momente schafft.
Die prämierten Architekten haben jeden Quadratmeter mit Bedacht geplant – für eine Wohnqualität, die Du spüren wirst. Große Fensterflächen holen die Natur ins Haus, während die moderne Formensprache zeitlose Eleganz garantiert.
Neubau für die Zukunft
Dein neues Zuhause erfüllt alle aktuellen Baustandards: Ökologische Bauweise und bauphysikalische Intelligenz bilden das Fundament. So wohnst Du nicht nur komfortabel, sondern auch mit gutem Gewissen.
Die verwendeten Materialien und Technologien sind sorgfältig aufeinander abgestimmt – für ein gesundes Raumklima und minimale Betriebskosten.
Ein guter Mix: Solide ausgestattete Wohnungen und Einheiten mit gehobener Ausstattung im Staffelgeschoss – für unterschiedliche Ansprüche und Budgets.
Jung. Alt.
Tolle Mieter gesucht!
Den Eigentümern liegt eine gute Hausgemeinschaft am Herzen – eine Bewohnerschaft, die zusammenpasst und in der sich Jung und Alt gegenseitig bereichern.
Deshalb suchen wir Menschen, die sich ein langfristiges Zuhause wünschen und Wert auf ein gutes Miteinander legen.
Hier entstehen keine anonymen Renditeobjekte und kein geförderter Wohnraum, sondern faire Mietverhältnisse mit Qualität, die man spürt – von der Wärmepumpe über die Einbauküche bis zur durchdachten Raumaufteilung.
Durchdachte Planung
Hier findest Du Raum für alles, was zählt: gemeinsame Abendessen in der offenen Wohnküche, ruhige Rückzugsorte zum Arbeiten oder Entspannen, und einen Balkon oder eine Terrasse um am Abend die letzten Sonnenstrahlen zu genießen.
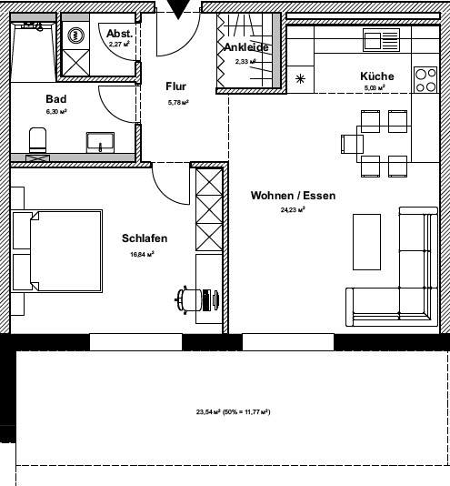
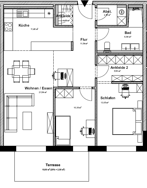
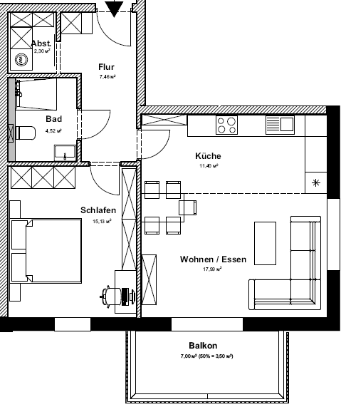
Vier Beispiele aus dem Haus – von der kompakten Zweizimmer-Wohnung bis zur großzügigen Dachgeschoss-Wohnung mit Dachterrasse.

2 Zimmer Dachgeschoss

3 Zimmer Dachgeschoss

3 Zimmer Erdgeschoss

2 Zimmer 1.Obergeschoss
Hamburg-Nah wohnen
Zum klugen Preis
Du kennst die Mieten in Hamburg: In Eppendorf, Winterhude oder Uhlenhorst werden für Wohnungen heute 17 bis weit über 20 Euro pro Quadratmeter aufgerufen – oft im Altbau, ohne Aufzug, ohne Solaranlage.
Am Beimoorweg wohnst Du im Neubau mit Wärmepumpe, Solarstrom, Aufzug und Einbauküche – und das in einem Preisrahmen, der im Vergleich zum Hamburger Norden interessant ist.
Die Hamburger Innenstadt ist über Bahn und Bus gut erreichbar, der Speckgürtel-Vorteil inklusive: mehr Grün, mehr Platz, mehr Ruhe.
Barrierefrei & für jede Lebensphase
Ein Zuhause, das mitwächst – Mobilität mit Kindern und im Alter gesichert!
Das ganze Haus ist stufenlos und gut zugänglich geplant – bequem mit Kinderwagen, Einkäufen oder Rollator. Ein Aufzug bringt Dich bis ins Dachgeschoss. Mehrere Wohnungen sind vollständig barrierefrei, einzelne sogar rollstuhlgerecht ausgestattet. So findest Du hier ein Zuhause, in dem Du auch dann bleiben kannst, wenn sich die Lebensumstände ändern.

Modern & nachhaltig
Gut für Deine Nebenkosten
Eine große Solaranlage auf dem Dach, Wärmepumpen statt Gas und Wallboxen für Dein E-Auto: Dieses Haus ist für die Zukunft gebaut. Für Dich heißt das stabile Nebenkosten und ein gutes Gewissen – unabhängig davon, wie sich die Energiepreise entwickeln.
* Bei den Visualisierungen handelt es sich um Ausstattungsideen. Die Wohnungen werden unmöbliert vermietet – eine Einbauküche ist in jeder Wohnung enthalten.
Dranbleiben
Bleib auf dem Laufenden
Du bist noch unentschlossen, möchtest das Projekt aber im Blick behalten? Trag Dich für unseren Bau-Newsletter ein und erhalte regelmäßig Bilder und Neuigkeiten vom Baufortschritt – ganz unverbindlich.
Wohnen in Ahrensburg war selten so attraktiv
Am Beimoorweg 20a entstehen 35 moderne Mietwohnungen für Menschen jeden Alters. Sichere Dir Deinen Platz auf der Interessentenliste – wir melden uns persönlich bei Dir.





